房天下>宁波二手房>海曙二手房>白云二手房>明州瑧悦府二手房

明州瑧悦府 148平4居 南向简装修 安静不临街

分享

微信扫一扫分享好友
更多分享>

收藏

下载房天下APP
楼盘动态及时知

基本信息
建筑年代2024年
有无电梯
产权性质 个人产权
挂牌时间 2025-07-08
梯户比例 暂无数据
供暖方式 暂无数据
房屋结构 平层
抵押信息 暂无数据
楼层高度 暂无数据
上次交易 暂无数据
房源动态
  • -
    房源浏览(人)
  • -
    房源带看(次)
  • -
    关注房源(人)
  • 当前房源报价为:400.00万
    2026-02-12

微信扫码查看更多

房源描述
  • 核心卖点
    该房源性价比高! 推荐理由: 1、 环境优美,物业好, ! 2、 经典户型,采光好,性价比高, 有房源! 3、 周边配套设施齐全,成熟社区,交通便利!
  • 业主心态
    房东置换,诚心出售,价格可以再谈,欢迎看房,随时恭候。
  • 小区配套
    1、品牌开发商开发,品质更有保障;2、小区环境优美,闹中取静,配套齐全,交通便利;3、居民综合素质高,邻里关系和谐,其乐融融;4、小区地理位置,环境优美绿化多;5、配套:有绿化景观带及老年活动室,可供小区居民使用;6、车位:停车位充足,配有车库及杂物间;
  • 服务介绍
    本人从事房地产多年,公司有大量好房源,欢迎进入我的店铺查看,欢迎随时电话咨询,相信我的专业,为您置业安家保驾护航。
房源图片
室内图
室内图
室内图
室内图
室内图
室内图
室内图
室内图
室内图
室内图
室内图
室内图
小区相关图
小区相关图
小区相关图
小区相关图
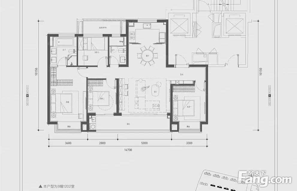
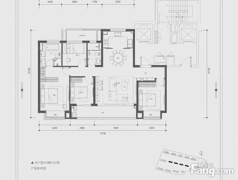
户型图
户型图
户型图
户型图
400
4室2厅2卫
户型
148平米
建筑面积
27027元/平米
单价
朝向
高层
楼层(共10层)
简装修
装修
小      区
区      域
宁波市甬旺房产经纪有限公司
明州瑧悦府小区信息
参考均价24929元/平米
同比去年↓7.7%
环比上月↓2.57%
收藏
物业类型 住宅
物业费用2.75元/㎡·月
建筑类型板楼
产权年限70
建筑年代2025年
绿 化 率30%
容 积 率2.4
人车分流
总楼栋数17
总 户 数985
小区日照
小区图片
周边配套
免责声明:房源信息由网站用户提供,其真实性、合法性由信息提供者负责,最终以政府部门登记备案为准。本网站不声明或保证内容之正确性和可靠性,购买该房屋时,请谨慎核查。入学情况仅凭历史经验总结,在此不承诺升学事宜。请您在签订合同之前,切勿支付任何形式的费用,以免上当受骗。